

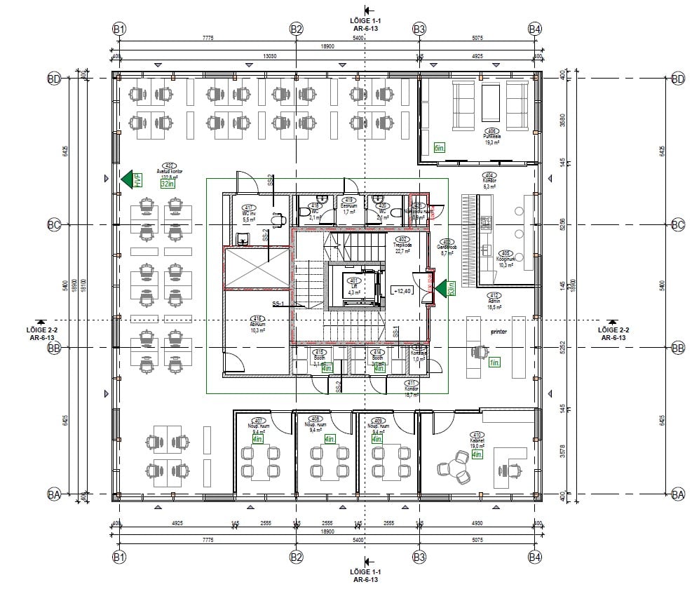
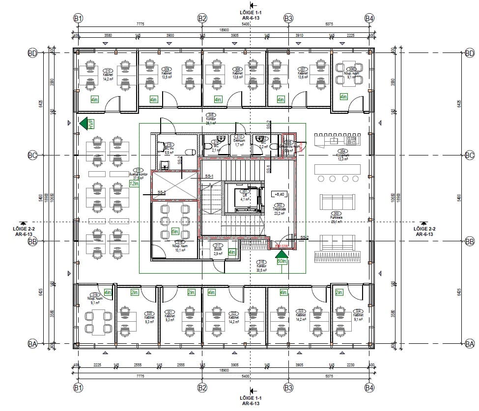
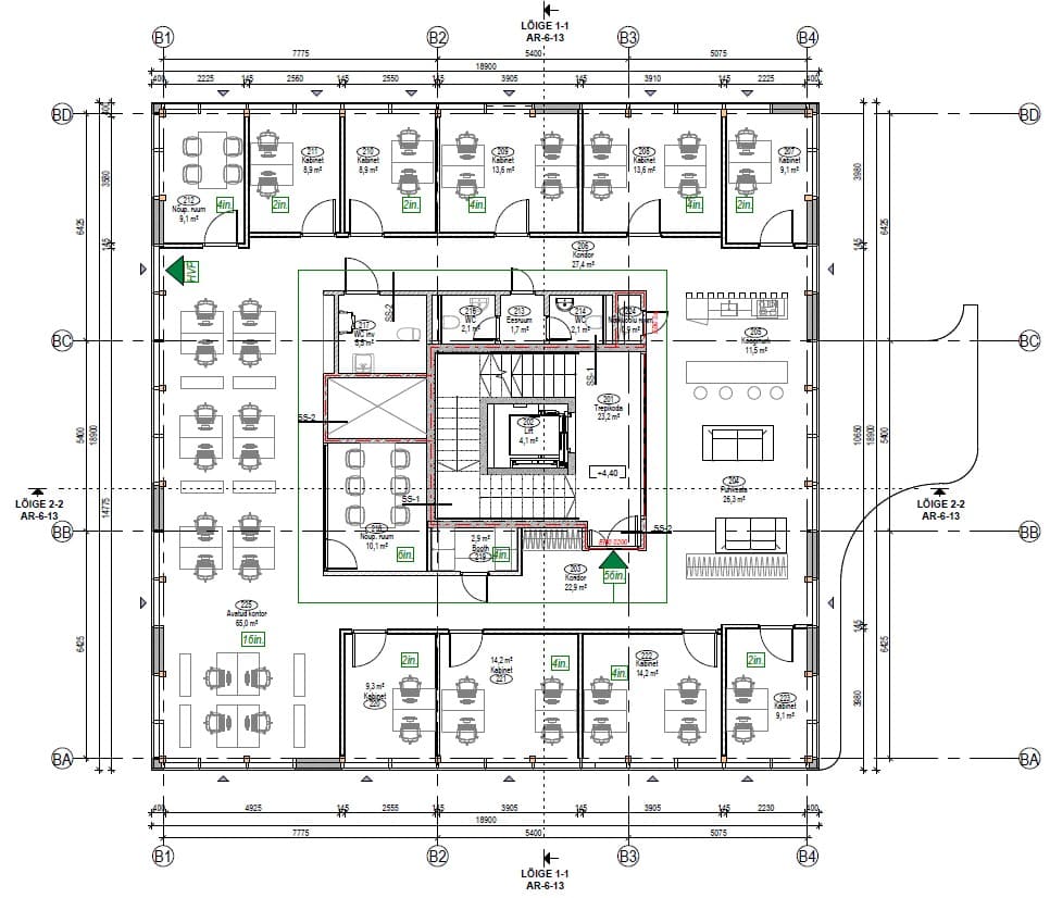
Bürooruumide rent
Rajatav Jõhvi digi- ja multimeedia inkubaator on koostöötamiskeskus, kuhu luuakse modernne tööala mugavate töölaudadega, nõupidamis- ja seminariruumid, helikindlad kõneboksid ning lõõgastumiseks puhkenurgad. Kehakinnitamise eest hoolitseb hubane kohvik.
Lisaks on tasuta parkimiskohad, jalgrattaparkla, elektriautode laadimiskohad. Ligipääs keskusele tagatakse ka liiklemisel ühistranspordiga, kergliiklusvahendiga ja jalgsi linnakeskusest.
Bürooruumid on saadaval peale inkubaatori valmimist 2026.
Valmib aastal 2026
Küll aga pakume ruumide eelbroneerimise võimalust juba täna. Vakantsed bürooruumid asuvad keskuse II, III ja IV korrusel.
Eelbroneerimiseks küsi palun pakkumist allpool. Ole valmis täitma ka TAOTLUST, peale seda kui oleme päringu kätte saanud ja kinnitanud soovitud ruumide saadavuse. Taotluse esitamine on vajalik inkubaatori teenuste kasutajale kohaldatud tingimustele vastavuse kontrolliks.
Tutvu tingimustega SIIN.







